Продажа квартиры в новостройке, Краснодар, им. лётчика Позднякова ул., Д.2ТРА, Краснодарский край
- Регион
- Краснодарский край
| Адрес | Краснодар, им. лётчика Позднякова ул., Д.2ТРАОбъект на карте |
- Тип дома
- Кирпично-монолитный
- Этаж
- 5 этаж в 16-этажном доме
- Кол-во комнат
- 2
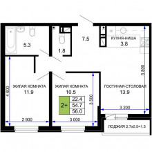
- Общая площадь
- 57.65 м2
- Жилая площадь
- 46.12 м2
- Дата обновления
- 27.10.2025
- Дата размещения
- 23.10.2025
- Данные ресурса
- 1721 :: 7633124
Продается 2-комн. квартира, площадью 57.65 м2 в монолитно-кирпичной новостройке. Возможен вариант покупки с использованием ипотечных средств, есть рассрочка, возможна покупка с использованием материнского капитала, есть военная ипотека.
Жилая площадь 46.12 м2, предчистовая отделка.
Квартира располагается на 5 этаже 16-этажного дома в ЖК Дыхание.
Застройщик - ГК ССК, сдача дома - III квартал 2023 года, дом уже сдан.
Дом оборудован пассажирским лифтом, закрытая территория, парковка охраняется. Обеспечение безопасности: видеонаблюдение, противопожарная система. Инфраструктура: детские площадки, спортивные площадки, места для отдыха, супермаркет, рестораны, фитнес-центр, пункты бытового обслуживания, коммерческие объекты.
«Дыхание» - проект масштабной комплексной застройки. Благодаря такому типу строительства, жители района могут отдыхать и заниматься спортом на открытом воздухе прямо на территории «Дыхание».
Микрорайон «Дыхание» задуман как проект комплексной застройки: 30 девятиэтажных монолитных домов на территории 39 гектаров. На первом этапе строится 12 корпусов (№№1-12) , которые сгруппированы в кварталы по шесть домов, образующих внутренние дворы. Реализуется поквартальный принцип застройки.
Первый этап новый застройщик назвал ЖК «Дыхание» и представил покупателям квартиры с предчистовой отделкой и общей площадью от 23 кв. м (студии) до 56 кв. м (трехкомнатные) . В квартиры будут проведены интернет и телефон, а также все городские коммуникации. Высота потолков - 2,7 м. В микрорайоне будут своя котельная и водозаборная станция.
Благоустройство предполагает ландшафтное озеленение, наличие детских городков с безопасным покрытием, спортивных площадок, парковочных мест, велодорожек, мест для барбекю и зон отдыха со скамейками и пешеходными аллеями. Безопасность территории обеспечивается цифровой системой видеонаблюдения. Во дворах будет действовать wi-fi, на входе в подъезд планируют установить IP-домофоны.
Проект комплексной застройки ЖК «Дыхание» расположен в Прикубанском округе, на северо-восточной окраине Краснодара, вблизи поселка Российский. Одно из ключевых достоинств района - чистый воздух и обилие свободных пространств. По соседству с полями и пригородными ландшафтами с нуля создаются жилые кварталы со своей коммерческой, социальной и транспортной инфраструктурой.
В непосредственной близости от комплекса находится остановка автобуса №146а и маршрутного такси №170а, которые едут до железнодорожной станции и автовокзала «Краснодар-2», Чистяковской рощи и центральных улиц города - Красной и Александровского бульвара. Расстояние до аэропорта Краснодар (Пашковский) - 20 км, до автотрассы М-4 «Дон» (Москва - Новороссийск) - 7 км, до железнодорожного вокзала - 16 км.
Аккредитованные банки: Сбербанк, Альфа-Банк, ВТБ, Банк Уралсиб, РОССИЯ, Абсолют Банк, Металлинвестбанк, РНКБ, ПСБ, Кубань Кредит, Банк ВБРР, Россельхозбанк.
Позвоните и узнайте условия покупки прямо сейчас!
Жилая площадь 46.12 м2, предчистовая отделка.
Квартира располагается на 5 этаже 16-этажного дома в ЖК Дыхание.
Застройщик - ГК ССК, сдача дома - III квартал 2023 года, дом уже сдан.
Дом оборудован пассажирским лифтом, закрытая территория, парковка охраняется. Обеспечение безопасности: видеонаблюдение, противопожарная система. Инфраструктура: детские площадки, спортивные площадки, места для отдыха, супермаркет, рестораны, фитнес-центр, пункты бытового обслуживания, коммерческие объекты.
«Дыхание» - проект масштабной комплексной застройки. Благодаря такому типу строительства, жители района могут отдыхать и заниматься спортом на открытом воздухе прямо на территории «Дыхание».
Микрорайон «Дыхание» задуман как проект комплексной застройки: 30 девятиэтажных монолитных домов на территории 39 гектаров. На первом этапе строится 12 корпусов (№№1-12) , которые сгруппированы в кварталы по шесть домов, образующих внутренние дворы. Реализуется поквартальный принцип застройки.
Первый этап новый застройщик назвал ЖК «Дыхание» и представил покупателям квартиры с предчистовой отделкой и общей площадью от 23 кв. м (студии) до 56 кв. м (трехкомнатные) . В квартиры будут проведены интернет и телефон, а также все городские коммуникации. Высота потолков - 2,7 м. В микрорайоне будут своя котельная и водозаборная станция.
Благоустройство предполагает ландшафтное озеленение, наличие детских городков с безопасным покрытием, спортивных площадок, парковочных мест, велодорожек, мест для барбекю и зон отдыха со скамейками и пешеходными аллеями. Безопасность территории обеспечивается цифровой системой видеонаблюдения. Во дворах будет действовать wi-fi, на входе в подъезд планируют установить IP-домофоны.
Проект комплексной застройки ЖК «Дыхание» расположен в Прикубанском округе, на северо-восточной окраине Краснодара, вблизи поселка Российский. Одно из ключевых достоинств района - чистый воздух и обилие свободных пространств. По соседству с полями и пригородными ландшафтами с нуля создаются жилые кварталы со своей коммерческой, социальной и транспортной инфраструктурой.
В непосредственной близости от комплекса находится остановка автобуса №146а и маршрутного такси №170а, которые едут до железнодорожной станции и автовокзала «Краснодар-2», Чистяковской рощи и центральных улиц города - Красной и Александровского бульвара. Расстояние до аэропорта Краснодар (Пашковский) - 20 км, до автотрассы М-4 «Дон» (Москва - Новороссийск) - 7 км, до железнодорожного вокзала - 16 км.
Аккредитованные банки: Сбербанк, Альфа-Банк, ВТБ, Банк Уралсиб, РОССИЯ, Абсолют Банк, Металлинвестбанк, РНКБ, ПСБ, Кубань Кредит, Банк ВБРР, Россельхозбанк.
Позвоните и узнайте условия покупки прямо сейчас!














