Продажа помещения различного назначения, Горячий Ключ, Ленина ул., 8, Краснодарский край
- Регион
- Краснодарский край
| Адрес | Горячий Ключ, Ленина ул., 8Объект на карте |
- Этаж
- 2 этаж в 3-этажном доме
- Общая площадь
- 500.00 м2
- Дата обновления
- 11.02.2026
- Дата размещения
- 13.12.2025
- Данные ресурса
- 1721 :: 7612523
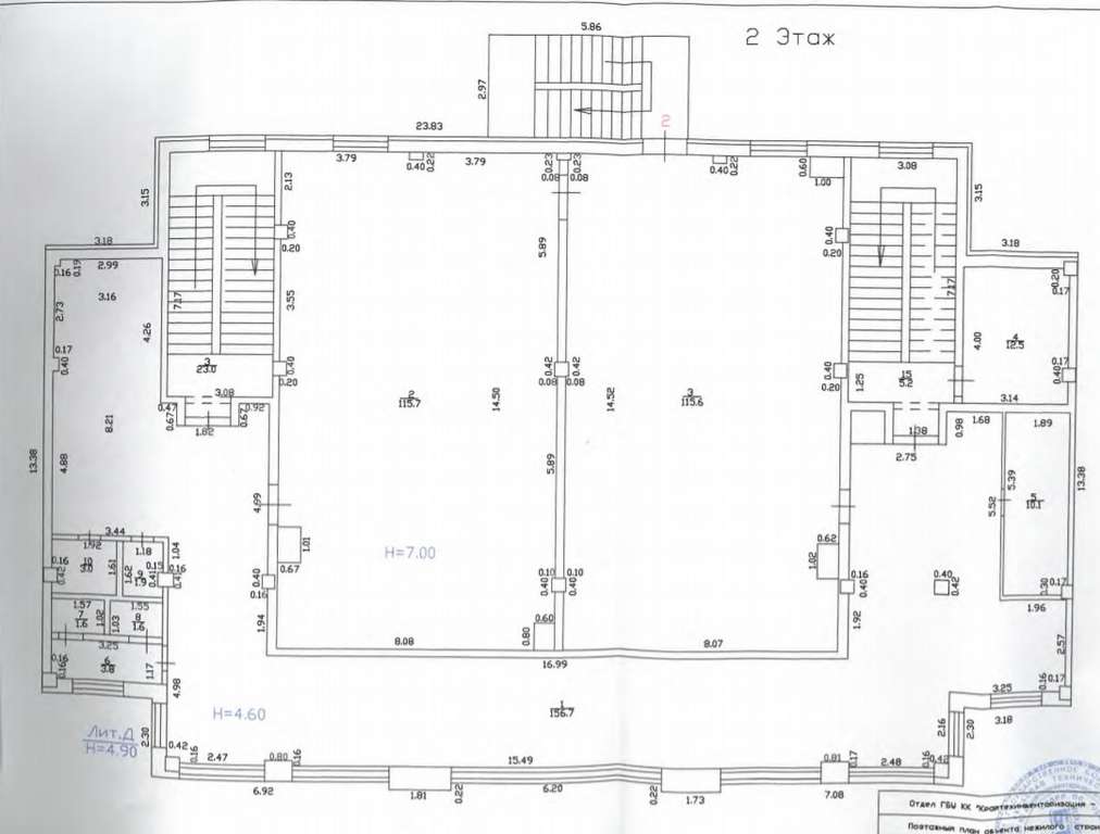
Продается кинотеатр на два зала. Много дополнительных площадей под сферу услуг. Новое здание. Кинотеатр очень нужен городу. Горожанам и отдыхающим гостям города приходится ездить за 70 км. Помещение свободного назначения площадью 500 м2, предоставляется юридический адрес. Помещение располагается в 3-этажном административном здании класса A, находится на 2 этаже здания.
Возможное назначение - прочее, высота потолков 7 м, внутри типовой ремонт, 4 мокрые точки, тип окон - витринные, окна выходят окна во двор и на улицу. В помещении интернет, телефон.
Общая площадь здания 1400 м2, здание находится на участке 0.6 га, год постройки 2021, участок находится в собственности, здание полностью функционирует.
Внутри центральное кондиционирование, вентиляция - приточная, автономное отопление, система пожаротушения, внутри есть водоснабжение.
Отдельный вход с улицы, доступ в здание свободный, здание открыто круглосуточно.
Парковка автомобилей - наземная, парковка на 20 машиномест, из них 20 предоставляются в пользование, есть гостевые места, парковка предоставляется бесплатно.
Возможное назначение - прочее, высота потолков 7 м, внутри типовой ремонт, 4 мокрые точки, тип окон - витринные, окна выходят окна во двор и на улицу. В помещении интернет, телефон.
Общая площадь здания 1400 м2, здание находится на участке 0.6 га, год постройки 2021, участок находится в собственности, здание полностью функционирует.
Внутри центральное кондиционирование, вентиляция - приточная, автономное отопление, система пожаротушения, внутри есть водоснабжение.
Отдельный вход с улицы, доступ в здание свободный, здание открыто круглосуточно.
Парковка автомобилей - наземная, парковка на 20 машиномест, из них 20 предоставляются в пользование, есть гостевые места, парковка предоставляется бесплатно.









