Продажа помещения различного назначения, п Кубанский, Ленина ул, 1, Краснодарский край
- Регион
- Краснодарский край
| Адрес | п Кубанский, Ленина ул, 1Объект на карте |
- Общая площадь
- 119.10 м2
- Дата обновления
- 11.02.2026
- Дата размещения
- 13.12.2025
- Данные ресурса
- 1721 :: 6335442
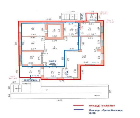
Сбер А предлагает к реализации нежилое здание общей площадью 119,1 кв. м, Газопроводов низкого давления и газификации топочной дополнительного офиса №1802/039 Тихорецкого отделения №1802 ОАО "Сбербанк России", земельного участка площадью 1229 кв. м., расположенных по адресу: Россия, Краснодарский край, Новопокровский район, п. Кубанский, ул. Ленина, дом №1/2, принадлежащее ПАО Сбербанк.
Номер процедуры: SBR065-2504160009
Продажа посредством проведения торгов на электронной площадке Сбербанк-АСТ.
Собственник: ПАО Сбербанк
Нежилое здание,
общая площадь: 119,1 м2
этажность: 1
кадастровый номер: 23:22:0602002:3842
Газопровод низкого давления
Земельный участок:
общая площадь: 1229,0 м2
кадастровый номер ЗУ: 23:22:0602002:917
Особые условия: обратная аренда
Дополнительная информация, документы и условия реализации указаны на площадке в разделе «Документы».
По всем вопросам, связанным с лотом, обращайтесь в рабочее время по телефону с 09:00 до 18:00 по МСК.
Номер процедуры: SBR065-2504160009
Продажа посредством проведения торгов на электронной площадке Сбербанк-АСТ.
Собственник: ПАО Сбербанк
Нежилое здание,
общая площадь: 119,1 м2
этажность: 1
кадастровый номер: 23:22:0602002:3842
Газопровод низкого давления
Земельный участок:
общая площадь: 1229,0 м2
кадастровый номер ЗУ: 23:22:0602002:917
Особые условия: обратная аренда
Дополнительная информация, документы и условия реализации указаны на площадке в разделе «Документы».
По всем вопросам, связанным с лотом, обращайтесь в рабочее время по телефону с 09:00 до 18:00 по МСК.





