Продажа квартиры в новостройке, Новороссийск, Ручейная ул., 1, Краснодарский край
- Регион
- Краснодарский край
| Адрес | Новороссийск, Ручейная ул., 1Объект на карте |
- Тип дома
- Кирпично-монолитный
- Этаж
- 2 этаж в 8-этажном доме
- Кол-во комнат
- студия
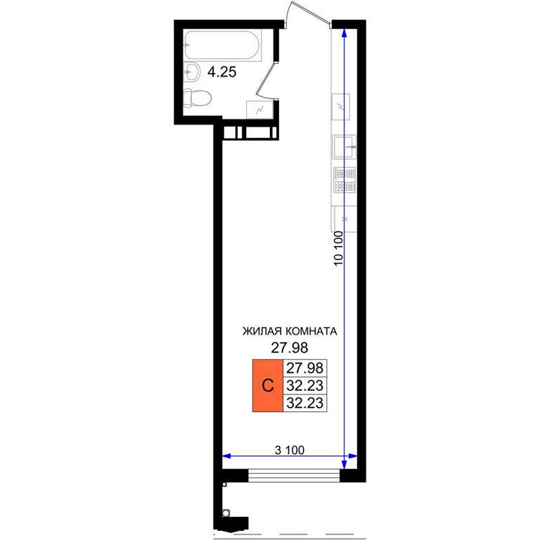
- Общая площадь
- 32.23 м2
- Жилая площадь
- 27.98 м2
- Дата обновления
- 17.04.2026
Продается студия, площадью 32.23 м2 в монолитно-кирпичной новостройке. Возможен вариант покупки с использованием ипотечных средств, есть рассрочка, возможна покупка с использованием материнского капитала, есть военная ипотека.
Жилая площадь 27.98 м2, предчистовая отделка, комнаты смежные.
Квартира располагается на 2 этаже 8-этажного дома в ЖК Резиденция морей.
Застройщик - ГК ССК, сдача дома - IV квартал 2026 года, высота потолков 2.85 м.
Дом оборудован пассажирским лифтом, закрытая территория.
Подземная парковка, парковка охраняется. Обеспечение безопасности: видеонаблюдение, пропускная система. Инфраструктура: детские площадки, спортивные площадки, супермаркет, рестораны, фитнес-центр, пункты бытового обслуживания, коммерческие объекты.
Жилой комплекс представляет собой закрытый периметр.
На территории подземного паркинга предусмотрены кладовые помещения, в которых будет удобно хранить авто-инвентарь, сезонные вещи и другие предметы быта, занимающие драгоценные метры квартиры.
Жители ЖК «Резиденция морей» смогут устраивать водные процедуры в любую погоду, даже когда на море шторм. Прямо во дворе комплекса расположатся два бассейна с расширенным временем пользования общей площадью 811 м2. В бассейне с разными уровнями глубины - от 0,5 до 1,5 м - смогут безопасно играть и учиться плавать самые маленькие жители.
Второй бассейн идеально подойдёт для длинных заплывов, спортивных тренировок и водного фитнеса, его глубина - 1,5 м. Вода в бассейнах всегда будет чистая за счет системы очистки и дезинфекции. Вокруг бассейнов будет благоустроена зона отдыха с шезлонгами. Также на территории будут оборудованы специальные помещения для переодевания и душевые комнаты.
АКЦИЯ:
Специальное предложение для тех, кто ценит комфорт и хочет получить идеальную квартиру у моря без хлопот!
Сейчас, выбрав квартиру от 1Кдо 3К в жилом комплексе «Резиденция Морей», вы можете приобрести жилье уже с готовым современным ремонтом в подарок.
Мы позаботимся о том, чтобы ваша квартира была полностью готова к заселению - с качественной отделкой и стильным дизайном, который позволит сразу начать новую жизнь в окружении морских пейзажей и свежего воздуха.
Превратите свои мечты о доме у моря в реальность уже сейчас, ведь предложение с готовым ремонтом - это дополнительная ценность и удобство, доступные только в рамках этой акции.
Позвоните и узнайте условия покупки прямо сейчас!
Жилая площадь 27.98 м2, предчистовая отделка, комнаты смежные.
Квартира располагается на 2 этаже 8-этажного дома в ЖК Резиденция морей.
Застройщик - ГК ССК, сдача дома - IV квартал 2026 года, высота потолков 2.85 м.
Дом оборудован пассажирским лифтом, закрытая территория.
Подземная парковка, парковка охраняется. Обеспечение безопасности: видеонаблюдение, пропускная система. Инфраструктура: детские площадки, спортивные площадки, супермаркет, рестораны, фитнес-центр, пункты бытового обслуживания, коммерческие объекты.
Жилой комплекс представляет собой закрытый периметр.
На территории подземного паркинга предусмотрены кладовые помещения, в которых будет удобно хранить авто-инвентарь, сезонные вещи и другие предметы быта, занимающие драгоценные метры квартиры.
Жители ЖК «Резиденция морей» смогут устраивать водные процедуры в любую погоду, даже когда на море шторм. Прямо во дворе комплекса расположатся два бассейна с расширенным временем пользования общей площадью 811 м2. В бассейне с разными уровнями глубины - от 0,5 до 1,5 м - смогут безопасно играть и учиться плавать самые маленькие жители.
Второй бассейн идеально подойдёт для длинных заплывов, спортивных тренировок и водного фитнеса, его глубина - 1,5 м. Вода в бассейнах всегда будет чистая за счет системы очистки и дезинфекции. Вокруг бассейнов будет благоустроена зона отдыха с шезлонгами. Также на территории будут оборудованы специальные помещения для переодевания и душевые комнаты.
АКЦИЯ:
Специальное предложение для тех, кто ценит комфорт и хочет получить идеальную квартиру у моря без хлопот!
Сейчас, выбрав квартиру от 1Кдо 3К в жилом комплексе «Резиденция Морей», вы можете приобрести жилье уже с готовым современным ремонтом в подарок.
Мы позаботимся о том, чтобы ваша квартира была полностью готова к заселению - с качественной отделкой и стильным дизайном, который позволит сразу начать новую жизнь в окружении морских пейзажей и свежего воздуха.
Превратите свои мечты о доме у моря в реальность уже сейчас, ведь предложение с готовым ремонтом - это дополнительная ценность и удобство, доступные только в рамках этой акции.
Позвоните и узнайте условия покупки прямо сейчас!






















