Продажа квартиры в новостройке, Краснодар, Старокубанская ул., 2, Краснодарский край
- Регион
- Краснодарский край
| Адрес | Краснодар, Старокубанская ул., 2Объект на карте |
- Тип дома
- Кирпично-монолитный
- Этаж
- 9 этаж в 18-этажном доме
- Кол-во комнат
- 2
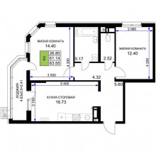
- Общая площадь
- 63.55 м2
- Жилая площадь
- 26.80 м2
- Площадь кухни
- 16.73 м2
- Дата обновления
- 15.03.2026
- Дата размещения
- 17.12.2025
Продается 2-комн. квартира, площадью 63.55 м2 в монолитно-кирпичной новостройке. Возможен вариант покупки с использованием ипотечных средств, есть рассрочка, возможна покупка с использованием материнского капитала, есть военная ипотека.
Жилая площадь 26.8 м2, кухня 16.73 м2, предчистовая отделка.
Квартира располагается на 9 этаже 18-этажного дома в ЖК Фонтаны.
Застройщик - ГК ССК, сдача дома - IV квартал 2026 года, высота потолков 2.82 м.
Дом оборудован пассажирским лифтом, закрытая территория.
Отдельная многоуровневая парковка, парковка охраняется. Обеспечение безопасности: видеонаблюдение, противопожарная система. Инфраструктура: детский сад, детские площадки, спортивные площадки, места для отдыха, супермаркет, рестораны, фитнес-центр, пункты бытового обслуживания, коммерческие объекты.
Жилой комплекс «Фонтаны» - дом клубного типа. Преимущество заключается в продуманном ландшафте дворов, круглосуточно охраняемой территории, системе видеонаблюдения во дворе. Также для удобства жителей проведен Wi-Fi во дворе, оборудованы безопасные и современные детские площадки, зоны отдыха.
«Фонтаны» - уникальный, неповторимый жилой комплекс, воплощающий оригинальные и креативные решения дизайнеров и архитекторов. Дома округлой форме - это придает им легкости, несмотря на массивность постройки.
ЖК «Фонтаны» расположен в микрорайоне Черёмушки. Отличная транспортная развязка позволяет быстро и с комфортом добраться до центра, а большое количество зеленых насаждений и парков дает возможность гулять с детьми и наслаждаться прекрасным видом на Кубань.
В жилом комплексе «Фонтаны» семьи с детьми до шести лет включительно могут оформить ипотеку по льготной ставке от 3,5% при первоначальном взносе от 20%.
Это возможность приобрести современную квартиру с продуманной планировкой, панорамными окнами и видами на реку Кубань, не откладывая мечту «на потом».
Территория ЖК - продуманное пространство для жизни: здесь найдётся место и для детских игр, и для спокойного отдыха взрослых, а близость к парковой зоне и будущему детскому саду сделает каждый день ещё комфортнее.
Выбирайте квартиру с готовым ремонтом и заселяйтесь без лишних хлопот - всё, что нужно для старта новой главы вашей семейной истории, уже здесь. Информация носит справочный характер. Не является публичной офертой.
Аккредитованные банки: Сбербанк, Альфа-Банк, ВТБ, Банк Уралсиб, РОССИЯ, Абсолют Банк, Металлинвестбанк, РНКБ, ПСБ, Кубань Кредит, Банк ВБРР, Россельхозбанк.
Позвоните и узнайте условия покупки прямо сейчас!
Жилая площадь 26.8 м2, кухня 16.73 м2, предчистовая отделка.
Квартира располагается на 9 этаже 18-этажного дома в ЖК Фонтаны.
Застройщик - ГК ССК, сдача дома - IV квартал 2026 года, высота потолков 2.82 м.
Дом оборудован пассажирским лифтом, закрытая территория.
Отдельная многоуровневая парковка, парковка охраняется. Обеспечение безопасности: видеонаблюдение, противопожарная система. Инфраструктура: детский сад, детские площадки, спортивные площадки, места для отдыха, супермаркет, рестораны, фитнес-центр, пункты бытового обслуживания, коммерческие объекты.
Жилой комплекс «Фонтаны» - дом клубного типа. Преимущество заключается в продуманном ландшафте дворов, круглосуточно охраняемой территории, системе видеонаблюдения во дворе. Также для удобства жителей проведен Wi-Fi во дворе, оборудованы безопасные и современные детские площадки, зоны отдыха.
«Фонтаны» - уникальный, неповторимый жилой комплекс, воплощающий оригинальные и креативные решения дизайнеров и архитекторов. Дома округлой форме - это придает им легкости, несмотря на массивность постройки.
ЖК «Фонтаны» расположен в микрорайоне Черёмушки. Отличная транспортная развязка позволяет быстро и с комфортом добраться до центра, а большое количество зеленых насаждений и парков дает возможность гулять с детьми и наслаждаться прекрасным видом на Кубань.
В жилом комплексе «Фонтаны» семьи с детьми до шести лет включительно могут оформить ипотеку по льготной ставке от 3,5% при первоначальном взносе от 20%.
Это возможность приобрести современную квартиру с продуманной планировкой, панорамными окнами и видами на реку Кубань, не откладывая мечту «на потом».
Территория ЖК - продуманное пространство для жизни: здесь найдётся место и для детских игр, и для спокойного отдыха взрослых, а близость к парковой зоне и будущему детскому саду сделает каждый день ещё комфортнее.
Выбирайте квартиру с готовым ремонтом и заселяйтесь без лишних хлопот - всё, что нужно для старта новой главы вашей семейной истории, уже здесь. Информация носит справочный характер. Не является публичной офертой.
Аккредитованные банки: Сбербанк, Альфа-Банк, ВТБ, Банк Уралсиб, РОССИЯ, Абсолют Банк, Металлинвестбанк, РНКБ, ПСБ, Кубань Кредит, Банк ВБРР, Россельхозбанк.
Позвоните и узнайте условия покупки прямо сейчас!
























