Продажа 1-комнатной квартиры, Сочи, Высокогорная ул., 47, Краснодарский край
- Регион
- Краснодарский край
| Адрес | Сочи, Высокогорная ул., 47Объект на карте |
- Этаж
- 3 этаж в 4-этажном доме
- Кол-во комнат
- 1
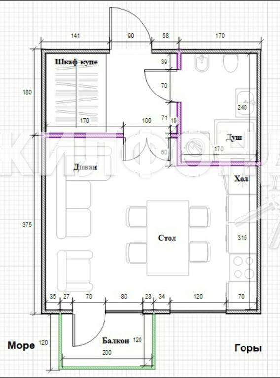
- Общая площадь
- 27.00 м2
- Жилая площадь
- 21.60 м2
- Дата обновления
- 26.05.2026
- Дата размещения
- 13.12.2025
1 комн. квартира по ул. Высокогорная. Общей площадью: 27.00 кв. м. ЖК Панорама 47 комфорт-класса по ОЧЕНЬ доступой цене! Новый дом. Придомовая парковка. Центральный район, над Новая Заря.
С балкона прекрасный вид на море и горы. 1 окно + 1 балкон. Потолки 3 метра высотой. В подъезде качественный ремонт. На 1 этаже продуктовый супермаркет Пятерочка. Автобусная остановка рядом с домом. 10 мин езды до ТЦ Моремол, 15 мин до центра Сочи, до моря 15 мин.
Дом сдан, право собственность регистрируется в Росреестре, обременений, арестов, прописаных нет! Земля в собственности.
Канализация, свет, вода - центральные.
Рядом школа, сад, поликлиника, салон красоты, фитнес-клуб и тд.
Идеальный вариант как для жизни, так и для сдачи в аренду.
Сделан очень качественный чистовой ремонт. Сейчас установлены стены ванной и коридора, разведена сантехника с инсталяцией Аlсарlаst, сделаны подводы и выводы под душевую кабину, писуар, гигиенический душ, стиральную и посудомоечную машины (проведена опрессовка) , разведена электрика по европейским нормативам. Трасса для кондиционера с отводом конденсата в канализацию. Залиты с утеплением и звукоизоляцией полы! Штукатурены и шпатлёваны стены под обои. В санузле сделана гидроизоляция под плитку. Всё из качественных, дорогих и сертифицированных материалов. Делалось для себя.
Звоните- отвечу на все вопросы!
Рядом с объектом находятся:
1 детский сад,
6 продуктовых магазинов,
1 спортивное учреждение.
Возможен обмен на вашу недвижимость.
При звонке, пожалуйста, сообщите номер варианта -
JV001023102100
С балкона прекрасный вид на море и горы. 1 окно + 1 балкон. Потолки 3 метра высотой. В подъезде качественный ремонт. На 1 этаже продуктовый супермаркет Пятерочка. Автобусная остановка рядом с домом. 10 мин езды до ТЦ Моремол, 15 мин до центра Сочи, до моря 15 мин.
Дом сдан, право собственность регистрируется в Росреестре, обременений, арестов, прописаных нет! Земля в собственности.
Канализация, свет, вода - центральные.
Рядом школа, сад, поликлиника, салон красоты, фитнес-клуб и тд.
Идеальный вариант как для жизни, так и для сдачи в аренду.
Сделан очень качественный чистовой ремонт. Сейчас установлены стены ванной и коридора, разведена сантехника с инсталяцией Аlсарlаst, сделаны подводы и выводы под душевую кабину, писуар, гигиенический душ, стиральную и посудомоечную машины (проведена опрессовка) , разведена электрика по европейским нормативам. Трасса для кондиционера с отводом конденсата в канализацию. Залиты с утеплением и звукоизоляцией полы! Штукатурены и шпатлёваны стены под обои. В санузле сделана гидроизоляция под плитку. Всё из качественных, дорогих и сертифицированных материалов. Делалось для себя.
Звоните- отвечу на все вопросы!
Рядом с объектом находятся:
1 детский сад,
6 продуктовых магазинов,
1 спортивное учреждение.
Возможен обмен на вашу недвижимость.
При звонке, пожалуйста, сообщите номер варианта -
JV001023102100






